Basement Wall Bracing
Basement Wall Bracing
(OP)
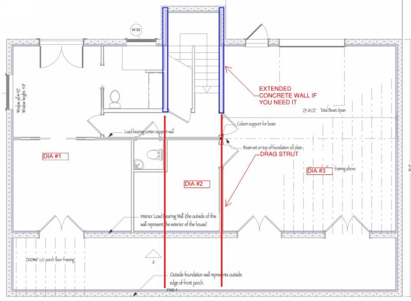
I have a 54'x34' residential basement with 9 ft. backfill on the front wall. The contractor will be backfilling with washed stone. I compute a load of 472 plf into the floor diaphragm. I don't normally like to go 54 ft. between shearwalls on a rectangular plan, but really do not want to get into interior shearwalls as the sustained loads end up being pretty high (near 500 plf). The stairweil is also interrupting my tension chord of the floor diaphragm. The foundation walls are precast concrete (Superior Walls). i never used to worry about things like this but am a little more risk averse in my old age. What would you guys do?






RE: Basement Wall Bracing
Dik
RE: Basement Wall Bracing
DaveAtkins
RE: Basement Wall Bracing
The wall does span vertically, but the floor diaphragm needs shearwalls to resolve the load - either using the end walls only or with some interior shearwalls as well.
@DaveAtkins - i'll check that out.
RE: Basement Wall Bracing
RE: Basement Wall Bracing
Dik
RE: Basement Wall Bracing
They can for sure. I am concerned about the rest of the floor diaphragm being able to take the load.
RE: Basement Wall Bracing
I like to debate structural engineering theory -- a lot. If I challenge you on something, know that I'm doing so because I respect your opinion enough to either change it or adopt it.
RE: Basement Wall Bracing
I like to debate structural engineering theory -- a lot. If I challenge you on something, know that I'm doing so because I respect your opinion enough to either change it or adopt it.
RE: Basement Wall Bracing
I like to debate structural engineering theory -- a lot. If I challenge you on something, know that I'm doing so because I respect your opinion enough to either change it or adopt it.
RE: Basement Wall Bracing
If I go with the extensions, I may still have an uplift problem which would have to be resolved. I may have that problem without the extensions as well.
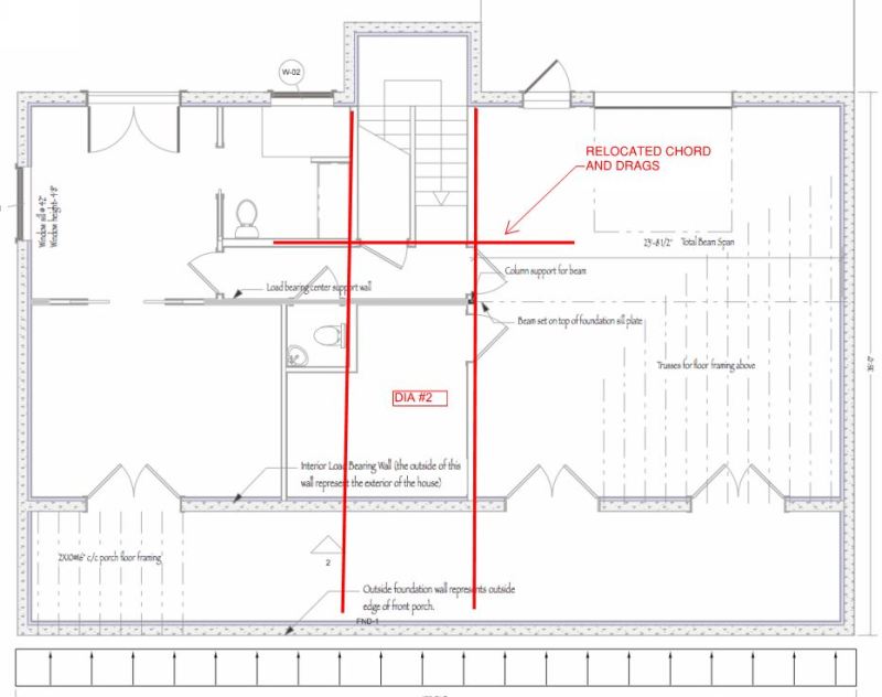
Might be better to use the wall to the left of the powder room for a single drag strut. Would not have an uplift problem and will be easier to connect to. That still does not solve the interruption of my diaphragm tension chord by the stairwell but i have never seen that be an issue in practice anyway.
RE: Basement Wall Bracing
RE: Basement Wall Bracing
RE: Basement Wall Bracing
RE: Basement Wall Bracing
RE: Basement Wall Bracing
RE: Basement Wall Bracing
RE: Basement Wall Bracing
RE: Basement Wall Bracing
RE: Basement Wall Bracing
RE: Basement Wall Bracing
You can replace your real diaphragm with the hypothetical one below and proceed as usual, treating the diaphragm as simple spanning. If you're a stickler for precision, you can also give the sub-diaphragm in the middle some attention easily enough. I'd be inclined not to bother.
I also note that in most respects, this approach would produce the same results as DaveAtkins' double cantilever proposal. As such, I consider this approach to serve as validation for Dave's. Not that Dave needs me to validate his recommendations of course.
Screwed up my sketch a little. Should be A & C in the second one, not A & B.
I like to debate structural engineering theory -- a lot. If I challenge you on something, know that I'm doing so because I respect your opinion enough to either change it or adopt it.
RE: Basement Wall Bracing
RE: Basement Wall Bracing
RE: Basement Wall Bracing
RE: Basement Wall Bracing
I want to thank everyone for all of their input!
RE: Basement Wall Bracing
RE: Basement Wall Bracing
They can design a concrete girt at the top of the wall - typically to span stairwell openings.
RE: Basement Wall Bracing
Around here these walls, at the time they came and told us about them, were not a delegated design item. They required the EOR to take responsibility for them. Granted they are just standard concrete and rebar type designs, but we weren't willing to go down that route. Similar to the girder-slab system compared to Deltabeam.
RE: Basement Wall Bracing
My neighbor used them on his house. His garage was on a hill so he just set the walls and piled some dirt on the outside to try to balance the interior gravel fill and poured the slab without attaching the slab to the top of the wall. Needless to say, it is leaning outwards and the slab has dropped about 5". I'm glad I was not involved in that one.
RE: Basement Wall Bracing
Seriously though, my thinking is that if a chord is interrupted, the conventional wisdom is that the diaphragm will fail. However, it truly CANNOT fail, because in order for the diaphragm to tear apart on the tension edge, it would have to overturn the basement walls which are parallel to the tension chord. Which will not happen.
DaveAtkins
RE: Basement Wall Bracing
Sweet. Diplomacy has earned me a good deal more stars than technical expertise I reckon'. I agree with your latest 100%. Sadly though, you can only star me once per thread...
I like to debate structural engineering theory -- a lot. If I challenge you on something, know that I'm doing so because I respect your opinion enough to either change it or adopt it.
RE: Basement Wall Bracing
Link has the basic procedure and might help in your situation. The Analysis of Irregular Shaped Diaphragms