please help me with this this one!
please help me with this this one!
(OP)
I have somewhat strange case...
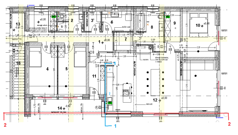
I have posted few images so things are more clear. RC slab is marked with red line, masonry is yellow and RC beams are green. Cantilever beam in blue.
RC beam that is partly integrated with a RC slab (that is 160 mm in thickness)is supported on RC columns and RC cantilever beam (from a RC wall perpendicular to a beam).
I have a few qusetions:
a) does that system looks allright to you? Since cantilever is 960 mm in depth and 300 mm wide I think it can be considered as stiff/rigid support. Do you agree?
b) torsion of cantilever beam shouldnt be a problem since it is also integrated in the green beam next to it (right side of cantilever - see view 2-2).
c) do you see any better solution/load path for this case?
d) Is there something I havent mentioned that could be important - I should be extra careful about?
e) Since beams are pretty large and design load on top of it is around 25 kN/m deflections shouldnt be a problem but I ll check it.






I have posted few images so things are more clear. RC slab is marked with red line, masonry is yellow and RC beams are green. Cantilever beam in blue.
RC beam that is partly integrated with a RC slab (that is 160 mm in thickness)is supported on RC columns and RC cantilever beam (from a RC wall perpendicular to a beam).
I have a few qusetions:
a) does that system looks allright to you? Since cantilever is 960 mm in depth and 300 mm wide I think it can be considered as stiff/rigid support. Do you agree?
b) torsion of cantilever beam shouldnt be a problem since it is also integrated in the green beam next to it (right side of cantilever - see view 2-2).
c) do you see any better solution/load path for this case?
d) Is there something I havent mentioned that could be important - I should be extra careful about?
e) Since beams are pretty large and design load on top of it is around 25 kN/m deflections shouldnt be a problem but I ll check it.












RE: please help me with this this one!
RE: please help me with this this one!
Dik
RE: please help me with this this one!
RE: please help me with this this one!
Of course I hope to hear from him too :)