PLEASE HELP!!! steel connection detail
PLEASE HELP!!! steel connection detail
(OP)
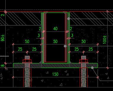
Can someone have a knowledge how to compute that 100m lap distance or is there any minimum requirement based on British or Eurocode. Thank you!!!!!

When was the last time you drove down the highway without seeing a commercial truck hauling goods?
Download nowINTELLIGENT WORK FORUMS
FOR ENGINEERING PROFESSIONALS Come Join Us!Are you an
Engineering professional? Join Eng-Tips Forums!
*Eng-Tips's functionality depends on members receiving e-mail. By joining you are opting in to receive e-mail. Posting GuidelinesJobs |
PLEASE HELP!!! steel connection detail
|
RE: PLEASE HELP!!! steel connection detail
Professional Engineer (ME, NH, MA) Structural Engineer (IL)
American Concrete Industries
https://www.facebook.com/AmericanConcrete/
RE: PLEASE HELP!!! steel connection detail
I like to debate structural engineering theory -- a lot. If I challenge you on something, know that I'm doing so because I respect your opinion enough to either change it or adopt it.
RE: PLEASE HELP!!! steel connection detail
let say the structure experience a minimal reaction. and the connection on the floor should be install already because of concrete pouring. so my manager said we need to put the fixation already which is the sleeve you saw on the drawings. so we can just insert the screen panel afterwards. the question is, is there any minimum height requirement for the sleeve? 100mm in that drawing. thank you!!! if theres still anything you need to know just tell me ill provide you with everything i got.