concret slab - shear issue
concret slab - shear issue
(OP)
Hello guys.
I'm designing a new RC slab.
I'm dealing with a slab shear problem since a bearing wall on a slab is not above a wall under a slab.
Slab is OK at 160 mm thickness, but not at the end where I have a shear problem as shown in attached picture.
I was thinking about increasing the thickness of a slab to 200 mm - but only where I need it (see picture) so a shear capacity of a slab is also OK.
As far as slab reinforcement go... I dont see any problem (red mesh reinforcement). I was thinking about adding some rebar reinforcement below (green in the picture).
What do you guys think about this?
I'm designing a new RC slab.
I'm dealing with a slab shear problem since a bearing wall on a slab is not above a wall under a slab.
Slab is OK at 160 mm thickness, but not at the end where I have a shear problem as shown in attached picture.
I was thinking about increasing the thickness of a slab to 200 mm - but only where I need it (see picture) so a shear capacity of a slab is also OK.
As far as slab reinforcement go... I dont see any problem (red mesh reinforcement). I was thinking about adding some rebar reinforcement below (green in the picture).
What do you guys think about this?






RE: concret slab - shear issue
Keep the bars in the top across the cantilever span and hook down on the end. The flexural moment produces tension in the top of the slab, right?
Unless it is a small, short span slab, I never depend on "mesh" (Welded Wire Fabric) for reinforcement.
Check out Eng-Tips Forum's Policies here:
FAQ731-376: Eng-Tips.com Forum Policies
RE: concret slab - shear issue
You've thickened your slab only by 40mm, so the clear distance between the lower red mesh and the green reinforcement is (40mm - green reinf diameter) = 28mm approx. This is getting towards the lower limit of bar spacing to allow proper concrete placement. Since the green reinf is not needed structurally and the quality of the concrete is important for the shear strength, consider whether it's introducing risk without benefit.
RE: concret slab - shear issue
I think your detail looks pretty sound, except that I would suggest using a 45 degree angle to transition from the 160 mm section to the 200 mm section, rather than a sudden jump. This will help minimize shear concentration at the transition. I would also suggest carrying the 200 mm portion of the slab some distance into the building is possible, since you're going to have negative moment over the bearing wall. The distance you carry it will be dependent on your continuous beam analysis. Don't forget that with continuous spans you have to consider all reasonable load situations i.e. load at some locations while not at others, load at all location, etc. in order to produce the maximum force effects.
JAE,
I agree that the bent bar in the bottom of the slab won't contribute to the flexural capacity of the cantilever, but I think it's a good idea for the following reasons:
1. It will provide confinement for whatever longitudinal reinforcement is present in the slab, and
2. It will act as temperature and shrinkage reinforcement for the bottom face of the slab to help control cracking.
RE: concret slab - shear issue
1) Deflection. The thickened blob is basically going to rotate as a rigid body along with whatever rotation is developed in the 160 slab at the low wall. And it'll creep some over time too. Flexurally, you've effectively got a 6", cantilevered, transfer slab here.
2) If you flip this thing upside down in your head, the upper wall becomes a simple beam support. And, like a simple beam support condition, it will be important to check to see that your rebar is developed at a rate commensurate with how quickly your moment is rising as you move towards the lower wall. This will steer you towards small diameter bars hooked at the ends as suggested by JAE.
3) You've only really got 300 mm between where the upper wall load will be delivered and where the lower wall reaction will reside. With a 200 mm thick slab over a 300 mm shear span, I'd be tempted to consider strut and tie methodology. This might steer your towards EngiNerDad's suggestion regarding 45 angle / thickening extension.
4) The stakes are kinda high here. If I couldn't make a single strut strut and tie design work here, I'd probably be looking for a way to get some shear reinforcement into the cantilever for redundancy.
In concrete design, we tend to divorce shear our shear checks from our flexural checks. But, in the real world, they're coupled. Your effective shear depth IS your flexural depth. So what you have to ask yourself here, in my opinion, is whether or not the flexural depth in the cantilever is really 200 mm? I doubt that it is.
I like to debate structural engineering theory -- a lot. If I challenge you on something, know that I'm doing so because I respect your opinion enough to either change it or adopt it.
RE: concret slab - shear issue
Longitudinal reinforcement down the length of the cantilever really doesn't need confinement....but your bottom (green) bars as shown will be in compression and those bars, if any, would need confinement.
But they have no purpose being on the bottom like that.
2. It will act as temperature and shrinkage reinforcement for the bottom face of the slab to help control cracking.
Those bars are in the bottom of the slab which is in compression. There's not much need for temperature and shrinkage reinforcement in concrete that is in compression due to the cantilever bending.
I agree with KootK on the "blob" of concrete - the backspan of a cantilever is sometimes just as important as the cantilever in terms of depth, stiffness, etc.
Check out Eng-Tips Forum's Policies here:
FAQ731-376: Eng-Tips.com Forum Policies
RE: concret slab - shear issue
I was thinking about some other solutions... Can I somehow help myself with this situation by making a concrete wall bellow a slab instead masonry wall...
RE: concret slab - shear issue
Don't be. I am, after all, a notorious over thinker of stuff. Just check the issues raised and sleep easy-ish. It may well work as you've shown it. No doubt it would work if you made the thickening 400 mmm and carried it a couple of feet past the wall. And checked the back span slab of course. But I'm sure you were doing that to begin with.
I don't see that making much of a difference.
I like to debate structural engineering theory -- a lot. If I challenge you on something, know that I'm doing so because I respect your opinion enough to either change it or adopt it.
RE: concret slab - shear issue
RE: concret slab - shear issue
Post a plan view - maybe we can find alternative load path.
RE: concret slab - shear issue
RE: concret slab - shear issue
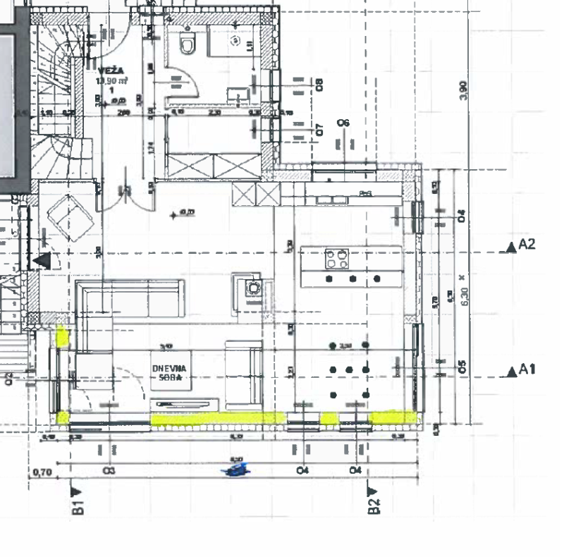
Yes, it is a residental building, but a load on a roof is pretty large (screed + gravel + possibly snow)
This is what I am dealing with:
Yellow masonry walls are walls that are on top of a slab.
RE: concret slab - shear issue
RE: concret slab - shear issue
RE: concret slab - shear issue
I know...I ll check it for punching shear also.
I decided to go partly with 200 mm slab and partly with 160 mm slab as shown in picture from my last post. I will change thickness above a bearing wall. Upper reinforcement will be continuous from 200 to 160 mm slab.
RE: concret slab - shear issue
RE: concret slab - shear issue