Timber balcony
Timber balcony
(OP)
Im designing timber balcony. It looks pretty simple but I havent done it before, so Im just looking for some confirmation...
Is my model alright? I did it based on photo below.
I will desing bolts on shear + tension (interaction) and check for pull-out force.
Also, do you think there should be more bolts, different locations?



Is my model alright? I did it based on photo below.
I will desing bolts on shear + tension (interaction) and check for pull-out force.
Also, do you think there should be more bolts, different locations?









RE: Timber balcony
RE: Timber balcony
RE: Timber balcony
well there are timber boards on top of those frames. So they act as diaphragm/sheating. I dont think thats an issue.
consider roof load being supported by the balcony as shown in the photos
There is no roof above - no timber post at the end of frame - photo is just for an example..
RE: Timber balcony
RE: Timber balcony
Is the interior floor properly secured to the wall?
Uplift forces on the deck from wind?
Agree with the concern over long term deterioration of the anchors.
Will the anchors have adequate strength against pull out, etc.?
Check out Eng-Tips Forum's Policies here:
FAQ731-376: Eng-Tips.com Forum Policies
RE: Timber balcony
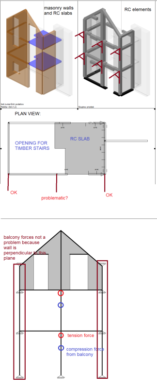
The only problem I see is the middle balcony support (truss) because it doesnt have horizontal bracing - there is no RC slab right there because of staircase opening). Corner supports are OK since there is a wall perpendicular to wall of balcony fixation.
hmmm Im sort of surprised that you think that timber boards/beams on top of balcony truss supports arent working as bracing/sheating...
I was thinking designing middle vertical RC tie and horizontal RC ties to this balcony load (moments form balcony truss supports).
RE: Timber balcony
They will act as LTB bracing for the frames themselves. But if they are not connected into the building adequately then all 3 support frames could realistically buckle the same direction.
RE: Timber balcony
The problem is, you don't know what that stiffness is. All the deck boards would be acting individually, not as a larger flat diaphragm.
The stiffness would be dependent on the fasteners and how much loose slip would develop over time.
We've had other posts here where we've discussed the fact that even thicker glue-laminated timber decking (tongue and groove) nailed together and to the supports has a somewhat limited knowledge base of diaphragm capacity or stiffness.
Check out Eng-Tips Forum's Policies here:
FAQ731-376: Eng-Tips.com Forum Policies
RE: Timber balcony
If the balcony support frames are o.k., why are you asking here? You asked for some advice, but nobody is forcing you to read btwn. the lines and think a little bit, and take that advice. Here’s 12 ozs. of confirmation, but that’s a little short of a pound.
RE: Timber balcony
If you have gaps between the decking it can still rack to the side. I'd add a few horizontal braces.
RE: Timber balcony
1) Loading is not uniform. People have this nasty tendency to gather at the outside edge leaning on the guard rail. This causes uneven loading and by the look of it vertical and horizontal loading on that horizontal member where it meets the wall. That joint looks to be crucial, but will be difficult to inspect / rot with time secure to the wall beam
2) that brace looks way too short to me on your last sketch.
3) One bolt in tension doesn't look to have enough FOS to me.
4) calculate the loads in one of the beams fails - will it cause catastrophic collapse?
Remember - More details = better answers
Also: If you get a response it's polite to respond to it.
RE: Timber balcony
RE: Timber balcony
I thought about what you guys wrote. I agree there should be horizontal bracing below timber boards.
RE: Timber balcony
Check out Eng-Tips Forum's Policies here:
FAQ731-376: Eng-Tips.com Forum Policies
RE: Timber balcony
Have you given thought to the tension connections? Not just the bolt but also the top beam to connection to the vertical?
It seems like you're trying to rush this without having thought through the entire load path. Be careful!
RE: Timber balcony
RE: Timber balcony
I would also verify that your horizontal lumber can span that distance. A 2x begins to fail deflection at a 5ft span, so you may be better off using joists between the frames.
How are you planning on on attaching a guardrail? Typically, there would be a member along the entire edge that this is fastened to. That edge member also does not have the capacity to resist the torsion created from a lateral load at the top of the guardrail so unless the edge member is a girder with members framing into it, blocking to the adjacent member is required.
You're right that the middle frame will require additional reinforcing to transfer the load into the building's diaphragm. The compression and tension in the wall must be transferred vertically to a member spanning horizontally between the end walls (or possibly just to the concrete slab depending on how elevations work out). Just check the entire load path. You may be able to just provide additional reinforcing in the masonry, but if that's not enough, then switch to concrete.
RE: Timber balcony
RE: Timber balcony
RE: Timber balcony
RE: Timber balcony
I was looking at some photos on internet. Im not really sure why they make it with vertical profile between horizontal and diagonal profle? Is a force to the wall distrubited along a vertical element?
RE: Timber balcony
I have 4 tension bolts per support (very conservative - 3x bigger tension capacity /pull out force than calculation requiered). Bolts are 15 cm in the RC tie (drilled in concrete). I was also thinking about adding a steel plate at the end of the bolts but that would mean that the bolts has to be installed before concrete - RC ties are even poured.
I added a steel beam at the end so the guard rail can be placed.
All steel members are welded together.
I added X bracings in horizontal plane based on horizontal wind force on railing.
RE: Timber balcony
By adding a vertical member at the wall, you can argue that the shear reaction would be shared between your top and bottom connections, which also gives you a little more redundancy.
It may also have been added for architectural or fabrication reasons.
www.structuralcentral.com
RE: Timber balcony
Also prevents accidental overstress of the knee joint where the bracing meets the horizontal support.
Welding all those joints looks like a much better idea.
Remember - More details = better answers
Also: If you get a response it's polite to respond to it.
RE: Timber balcony
www.structuralcentral.com
RE: Timber balcony
Im more comfortable with X bracing. They will pass over each other.
RE: Timber balcony
RE: Timber balcony
RE: Timber balcony
1) using a vertical piece along the face of the wall as your first diagrams suggest. This may help give you flexibility when they're finding places to anchor to the wall. If they're drilling and encounter a reinforcing bar, does your system have the flexibility to avoid it?
2) consider using anchors that go through the wall and are anchored to a plate on the inside.
3) If circumstances push you to use wedge or epoxy anchors, consider having some testing performed to establish the capacity in your case. Some manufacturers will send out a representative to do this prior to installation. Perhaps also include inspection of the holes or training by the anchor rep to be sure the hole preparation is correct.
4) Since your connection to the wall is concealed, consider the durability of the materials you're using. Specify stainless anchors? A galvanized vertical plate?
5) be sure to consider how the capacity of the anchors is affected by the anchor spacing.
RE: Timber balcony
Remember - More details = better answers
Also: If you get a response it's polite to respond to it.
RE: Timber balcony
RE: Timber balcony
I'm inclined to agree. One of the unique features of a system like this is that the bracing/diaphragm is not required to provide stability for gravity loads. If the support frames racked sideways, the loads would move no closer to the earth and, therefore, system potential energy would remain unchanged. Consequently, the frames are neutrally stable and the gravity load induced stability demand on the diaphragm is nominal.
The balcony will see some minor, direct lateral loads as described by others above (wind, EQ, occupancy). There's a marked difference between diaphragm demands of that nature and demands associated with the stability of gravity loads however. So long as you get two fasteners into each deck board to frame connection, the deck boards will act like little moment frame beams and all should be well.
It hearkens back classic timber frame connections. In the absence of shiny Simpson connectors, it made for an aesthetic and efficient means of dragging the vertical strut force into the wall fasteners which would often only be installed along the vertical leg of the bracket.
I like to debate structural engineering theory -- a lot. If I challenge you on something, know that I'm doing so because I respect your opinion enough to either change it or adopt it.
RE: Timber balcony
RE: Timber balcony
There's clearly a diversity of opinion on that. I certainly think that there's a reasonable theoretical case to be made for omitting the bracing. I like the aesthetic better without the bracing. Particularly if it ends up as painted - soon to be corroded - A36 steel.
I like to debate structural engineering theory -- a lot. If I challenge you on something, know that I'm doing so because I respect your opinion enough to either change it or adopt it.
RE: Timber balcony
The compression force does not necessarily occur at the lower bolt as shown in the sketches above. It occurs where the centroids of the diagonal and vertical members intersect. This results in a smaller lever arm when calculating the tensile force in the upper bolt. If the vertical member is stiff in bending, the location of the compressive force may be considered lower, but it is not related to the location of the lower bolt.
BA