Weird Steel Beam to Elevated Slab Detail
Weird Steel Beam to Elevated Slab Detail
(OP)
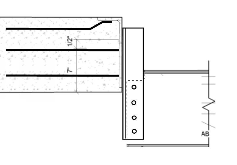
I'm working on an automated parking garage, and have got this connection to work by the numbers.
There is only a 3.5" overlap in elevation from bottom of 12" concrete slab to top of steel for this connection.
The reaction is 7.5 kips *1.6 = 12 kips (live load) in shear, no axial load.
I'm worried about the beam's torsional stability (despite there being 0 torsion even w/ unbalanced LL).
Any thoughts if this looks too funky, or something to add for stability without being too costly?
There is only a 3.5" overlap in elevation from bottom of 12" concrete slab to top of steel for this connection.
The reaction is 7.5 kips *1.6 = 12 kips (live load) in shear, no axial load.
I'm worried about the beam's torsional stability (despite there being 0 torsion even w/ unbalanced LL).
Any thoughts if this looks too funky, or something to add for stability without being too costly?






RE: Weird Steel Beam to Elevated Slab Detail
2. Can you change the three-bolt plate to be an embedded plate that extends up and over the top of the slab edge? Then use A706 rebar to tie in the embedded plate back to the slab better?
3. The three anchor bolts don't seem to carry much redundancy.
4. If there's salty water dripping off the cars then that little 3/16" fillet will go bye-bye.
5. Can you thicken the slab at that edge?
Check out Eng-Tips Forum's Policies here:
FAQ731-376: Eng-Tips.com Forum Policies
RE: Weird Steel Beam to Elevated Slab Detail
function of the 1/4" steel plate.
Based on the available information restraint against twisting at load points and supports
is questionable. If you're using AISC specs. for design, those are basic requirements / assumptions for
Chapter F (probably AASHTO as well).
However, it appears web sidesway buckling should be checked.
It may help to connect the 1/4 steel plate (top flange cover plate)to the slab connection plate.
It may also help if you could further stabilize the beam by connecting the bottom flange to
the bottom of the concrete slab.
RE: Weird Steel Beam to Elevated Slab Detail
Check out Eng-Tips Forum's Policies here:
FAQ731-376: Eng-Tips.com Forum Policies
RE: Weird Steel Beam to Elevated Slab Detail
I like to debate structural engineering theory -- a lot. If I challenge you on something, know that I'm doing so because I respect your opinion enough to either change it or adopt it.
RE: Weird Steel Beam to Elevated Slab Detail
RE: Weird Steel Beam to Elevated Slab Detail
Check out Eng-Tips Forum's Policies here:
FAQ731-376: Eng-Tips.com Forum Policies
RE: Weird Steel Beam to Elevated Slab Detail
RE: Weird Steel Beam to Elevated Slab Detail
Check out Eng-Tips Forum's Policies here:
FAQ731-376: Eng-Tips.com Forum Policies
RE: Weird Steel Beam to Elevated Slab Detail