Temperature reinforcement for block
Temperature reinforcement for block
(OP)
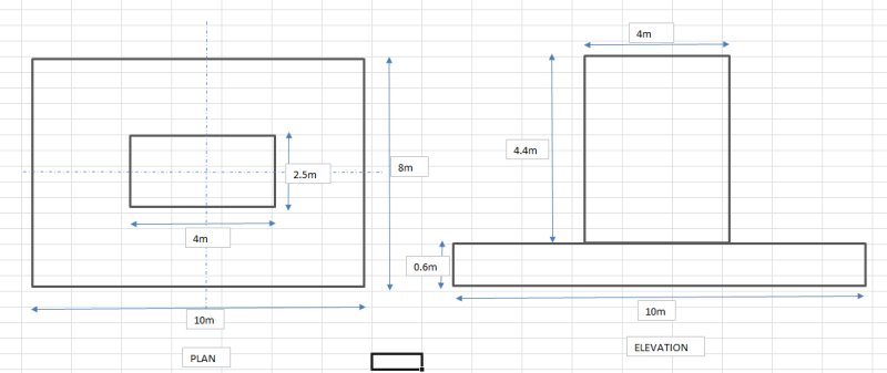
I have a block foundation. what is the temperature reinforcement for the block. If i consider 0.002 times gross section area,
it would be very high. The temperature
reinforcement given in code is for slab only, what is the temperature reinforcement is it is
Block.
it would be very high. The temperature
reinforcement given in code is for slab only, what is the temperature reinforcement is it is
Block.






RE: Temperature reinforcement for block
RE: Temperature reinforcement for block