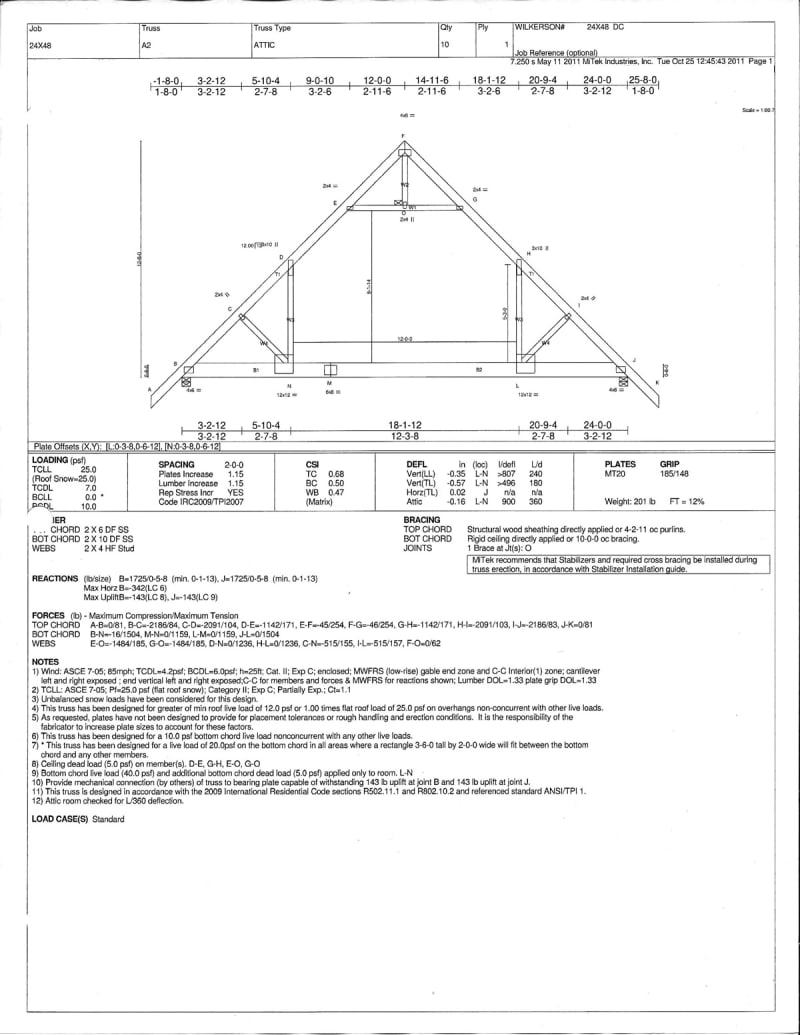
Attic Trusses
Attic Trusses
(OP)
Has anyone else had much experience analyzing trusses (metal plate connected trusses) utilizing RISA3D?
I've pin jointed all of the web members and rigid jointed the heel and peak joints. For now I've ignored all of the load cases and just assumed one load case to get a better feel for the Axial, Shear and Moments in the various chords and webs.
Loads

Axial

Shear

Moments

I've pin jointed all of the web members and rigid jointed the heel and peak joints. For now I've ignored all of the load cases and just assumed one load case to get a better feel for the Axial, Shear and Moments in the various chords and webs.
Loads

Axial

Shear

Moments

A confused student is a good student.
Nathaniel P. Wilkerson, PE
www.medeek.com






RE: Attic Trusses
Mike McCann, PE, SE (WA)
RE: Attic Trusses
RE: Attic Trusses
I'm pretty sure I've got this thing figured out just fine but nine times out of ten if I post it here I will find something I have missed...
A confused student is a good student.
Nathaniel P. Wilkerson, PE
www.medeek.com
RE: Attic Trusses
RE: Attic Trusses
All Joints Rigid:
All Joints Pinned except for Heel Joints:
A confused student is a good student.
Nathaniel P. Wilkerson, PE
www.medeek.com
RE: Attic Trusses
A confused student is a good student.
Nathaniel P. Wilkerson, PE
www.medeek.com
RE: Attic Trusses
My combined stress indexes are coming in a little higher than the ones generated by Mitek so not entirely sure that I have all the adjustment factors correct. For example the highest stressed web member is the ceiling web that is in compression and bending. Its CSI is .58 which is slightly larger than the WB = .47
A confused student is a good student.
Nathaniel P. Wilkerson, PE
www.medeek.com
RE: Attic Trusses
I have had instances where a contractor has hacked up a few of these for flues. They are really hard to fix as they are usually pretty highly stressed if the span is long.
RE: Attic Trusses
Remember...just because we model something in a particular way does not necessarily dictate its action or response in construction.
It appears that the original truss design (assuming that's your last sketch) considered the heels to be pinned.
RE: Attic Trusses
Truss heel heights are generally too high for a concentric joining of the chords and simultaneously not high enough to get a meaningful vertical web at the heel. You end up with wedge blocks, sliders, giant plates, and multie plates, all of which create significant potential for fixity,
I agree agree that the particular case illustrated in the sketches above would create something fairly close to pinned however.
I like to debate structural engineering theory -- a lot. If I challenge you on something, know that I'm doing so because I respect your opinion enough to either change it or adopt it.
RE: Attic Trusses
A confused student is a good student.
Nathaniel P. Wilkerson, PE
www.medeek.com
RE: Attic Trusses
Read this Article:
http://www.mitek-us.com/WorkArea/DownloadAsset.asp...
Being that the heel plates are usually rather large on most trusses I tend to agree with the article in paragraph two and I normally assume typical MPC trusses will have rigid heels and semi-rigid peak joints.
I would really like to get my hands on a copy of Mitek or Simpson's truss design software just to get a better idea of what goes on under the hood. It's really too bad they don't produce an engineer's or architect version of their software. I know the solar panel industry would definitely benefit from this.
A confused student is a good student.
Nathaniel P. Wilkerson, PE
www.medeek.com
RE: Attic Trusses
You make mighty nice sketches and diagrams, but I’ll be damned if I’ll follow this thread. I have to scroll all the way into the next room to the right to read the right most two thirds of each line of text. It just isn’t worth the effort. Why not show your sketches at a much smaller scale (pixel width?) so that they don’t expand the entire thread width so much? When you show them as an attachment, we can bring them up in a separate window and scroll around them without screwing up the reading of the entire thread. Many times I can adjust the scale on these attachments to see details, if I wish. I must be the only person on the E-Tips forums who has this problem, since no one else seems to be bothered by this thread width issue.
RE: Attic Trusses
A confused student is a good student.
Nathaniel P. Wilkerson, PE
www.medeek.com
RE: Attic Trusses
I have seen enough significant creep in floor trusses to know there is a problem somewhere. Never seen this in roof trusses, however. I guess the plates are not loaded as heavily due to the more favorable aspect ratio.
RE: Attic Trusses
I was using Mozilla Firefox on a 17" screen, and was facing the same problem, when I viewed the thread for the first time today. However, opening the page in Google Chrome has solved the problem.
You may try the same, too.
Thanks dhengr, for pointing out the problem, and medeek, for the tip.
A good structural engineer is often a blessing for others.
RE: Attic Trusses
First sentence in my previous post is not conveying the right sense. I actually meant that "medeek is right about the use of web browsers. Moreover, ..."
A good structural engineer is often a blessing for others.
RE: Attic Trusses
I like to debate structural engineering theory -- a lot. If I challenge you on something, know that I'm doing so because I respect your opinion enough to either change it or adopt it.
RE: Attic Trusses
RE: Attic Trusses
I like to debate structural engineering theory -- a lot. If I challenge you on something, know that I'm doing so because I respect your opinion enough to either change it or adopt it.
RE: Attic Trusses
I went to your website and read your bio, and not to be too harsh my man, but I am not sure what it is you are doing with this business or your career, and if it is ethical.
We are not allowed to assist non-engineers in engineering, and if you are not a qualified structural engineer, then we should not be helping you out.
Your post exposes a lack of knowledge of a system as basic as trusses, which is something you learn in Structures 1 and you should be able to solve simply by hand.
My educational background is a bachelor's of science in Mechanical Engineering from Brigham Young University ('98). I am a professionally licensed mechanical engineer in the State of Washington, as of December 2012, and in Utah, as of February 2014. I have spent the last few years studying structural engineering of wood frame structures in some depth, and the related commercial and residential codes.
RE: Attic Trusses
My original schooling was in mechanical engineering but I switched careers a couple years ago to the structural field, it has been challenging but definitely worth the ride.
I'm not sure what you mean that this post exposes my lack of knowledge of trusses. I challenge you to try and solve this particular truss by hand, the first thing you will determine is that it is an indeterminate structure and your method of joints or sections just does not work in this case, it can't be solved by hand. Matrix analysis is the only way to solve this truss.
Last year I programmed a matrix analsys program into my fledgling truss designer here:
http://design.medeek.com/calculator/calculator.pl (Fink truss only)
The results match up perfectly with my output from STAAD and RISA so I'm pretty confident I at least got that part of the structural analysis right.
I just received my copy of ANSI TPI-1 2014 in the mail yesterday and was pleasantly surprised to see that there are not many changes from the 2007 standard. My truss designer is at this point an academic exercise in trying to implement all of the necessary checks per the TPI 1 in regards to lumber and plate sizing, still very much a work in progress.
My next challenge it to try and add in a rudimentary attic truss.
I know that I am recreating the wheel when you consider that the truss giants (ie. Mitek, Eagle, Simpson, ITW) already have software that does this sort of analysis and probably a lot better than mine does. The problem is that as an engineer you will never gets your hands on their software unless you work for a truss company or are an employee of the plate manufacturers.
I am not an SE but then how many engineers that do residential structural engineering are? In the state of Washington and Utah and SE is only required for certain structures so what I do is perfectly within any legal or ethical realm.
A confused student is a good student.
Nathaniel P. Wilkerson, PE
www.medeek.com
RE: Attic Trusses
I guess I'm the type of person it is hard to pigeon hole into one career or stereotype even though some people will try. I've had a very varied career, with businesses in the tech industry, building supply industry, trucking industry and native art industry to name a few. I'm an engineer but I also enjoy design, architecture, art, programming and artificial intelligence research.
A confused student is a good student.
Nathaniel P. Wilkerson, PE
www.medeek.com
RE: Attic Trusses
BA
RE: Attic Trusses
BA
RE: Attic Trusses
A confused student is a good student.
Nathaniel P. Wilkerson, PE
www.medeek.com
RE: Attic Trusses
BA
RE: Attic Trusses
RE: Attic Trusses
Engineering is engineering, if you want a change in course go for it. A more drastic change in course from a mechanical discipline to computer or chemical engineering might raise a few more eyebrows but even then this is a free country, the choice and opportunities are there, if you want to take them.
A confused student is a good student.
Nathaniel P. Wilkerson, PE
www.medeek.com
RE: Attic Trusses
RE: Attic Trusses
EIT
www.HowToEngineer.com
RE: Attic Trusses
Are you guys having a bromance?
RE: Attic Trusses
In Florida an Engineer can practice in any field he is competent in as there is no " structural engineer " title, even though i think there should be. I don't know how many schools were teaching wood lateral load design in the past.
My brother has an engineering degree from Va. Tech.and is a P.E. and he did not study wood lateral design. The fact is school and passing the exam are only the beginning in any profession.