Pilaster Design in Residential Stemwall
Pilaster Design in Residential Stemwall
(OP)
Has anyone ever done a pilaster at the end of a stemwall in a residential design? I have a large point load at the end of a 8" x 48" high stemwall and I am thinking this is the route to go. Are there any prescriptive resources or design guides/spreadsheets?
A confused student is a good student.
Nathaniel P. Wilkerson, PE
www.medeek.com






RE: Pilaster Design in Residential Stemwall
http://www.ncma-br.org/pdfs/5/TEK%2017-04B.pdf
I'm not finding very much on reinforced concrete though.
A confused student is a good student.
Nathaniel P. Wilkerson, PE
www.medeek.com
RE: Pilaster Design in Residential Stemwall
1) Normally, columns need to have 1% vertical reinforcement minimum. ACI lets your go as low as 0.5%, however, if you reduce your capacity somewhat based on some clause that I can't remember. In short, you'll want 0.5% vertical reinforcing. It's usually efficient to use as few bars as possible. That being the case, I try to keep bars to #6 or smaller in residential applications.
2) Provide ties according to the column provisions in ACI. In the absence of a high shear demand, these are generally based on preventing the vertical bars from buckling. 48 times the tie bar diameter or 16 x the vertical var diameter I believe.
I like to debate structural engineering theory -- a lot. If I challenge you on something, know that I'm doing so because I respect your opinion enough to either change it or adopt it.
RE: Pilaster Design in Residential Stemwall
However, not ever having to design or engineer one of these before has me asking a lot of questions.
First and foremost is how to size the pilaster given the loads and the attached stemwall thickness and also that it is an endwall in the stemwall foundation. 30,000 lbs is not really much when it comes to concrete but when I thought about this much force at the end of an 8" stemwall it did give me some concern.
A confused student is a good student.
Nathaniel P. Wilkerson, PE
www.medeek.com
RE: Pilaster Design in Residential Stemwall
1) If you go with the pier, you'll probably want to design it as a concrete column per ACI.
2) If you want to stick with just the wall, there are provisions in ACI for designing walls with concentrated loads that you can use.
When evaluating the wall on its own to resist the point load, it's kind of a tough call to evaluate the bracing situation. If one can count on the soil and slab on grade to brace the wall completely, then you can basically just use the bearing strength of the concrete which would probably work. Certainly if this were a wall corner condition, I'd considering going that route.
I like to debate structural engineering theory -- a lot. If I challenge you on something, know that I'm doing so because I respect your opinion enough to either change it or adopt it.
RE: Pilaster Design in Residential Stemwall
Based on these numbers the 12" x 12" column/pilaster is way over capacity given the loads, I'm wondering if I am too worried about this location and if the 8" stemwall might be fine without any further modification.
A confused student is a good student.
Nathaniel P. Wilkerson, PE
www.medeek.com
RE: Pilaster Design in Residential Stemwall
A confused student is a good student.
Nathaniel P. Wilkerson, PE
www.medeek.com
RE: Pilaster Design in Residential Stemwall
In particular Section 14.3.5 states that vert. and horz. reinforcement should be not spaced more than three times the wall thickness, however I typically call out #4 vert. bars @ 24" o/c for most of my 6" stemwall foundations, technically this spacing should not exceed 18".
A confused student is a good student.
Nathaniel P. Wilkerson, PE
www.medeek.com
RE: Pilaster Design in Residential Stemwall
What I am a little unclear on is what to take as the appropriate Ag in the equation. Is this a unit area of the wall or is it the actual area of the bearing load (in this case it would be a 5.5" x 5.5" post.
To think that a 8" wall could take a point load of 82,000 lbs (given the appropriate footing/bearing) seems ludicrous but then again I am used to working with wood so my gut instinct on concrete strengths is probably all wrong.
A confused student is a good student.
Nathaniel P. Wilkerson, PE
www.medeek.com
RE: Pilaster Design in Residential Stemwall
http://www.assakkaf.com/courses/ence454/lectures/h...
A confused student is a good student.
Nathaniel P. Wilkerson, PE
www.medeek.com
RE: Pilaster Design in Residential Stemwall
I would be checking for bearing capacity under the post but then again, the wood post would govern. and then I could see the load spreading to a 2' wide strip almost, I think only saying 12" is conservative.
are you planning on putting ties around additional bars?
I've put 38 kips on an 8" foundation wall before without even thinking about it. Although my 38 kips may have been more conservatively determined than yours.
RE: Pilaster Design in Residential Stemwall
I think a 8" wall could easily hold the load but if it was in the middle of the wall but I'm applying this point load at the endwall situation, my worry is the concrete spalling or shearing off in some weird failure mode that might be hard to account for.
A confused student is a good student.
Nathaniel P. Wilkerson, PE
www.medeek.com
RE: Pilaster Design in Residential Stemwall
RE: Pilaster Design in Residential Stemwall
RE: Pilaster Design in Residential Stemwall
A confused student is a good student.
Nathaniel P. Wilkerson, PE
www.medeek.com
RE: Pilaster Design in Residential Stemwall
I'm just suggesting things to try and mitigate your blowout concerns. I actually think your spalling/splitting concerns are reasonable, I can picture a wedge of concrete at the top of the wall trying to come off.
RE: Pilaster Design in Residential Stemwall
I think capacity was never as much of an issue here as was my concern of a "blowout" at the end/top of the stemwall. I appreciate everyone's suggestions and help. I now have two new spreadsheets for concrete columns and walls as well as a much better idea how to deal with concrete walls in the future.
A confused student is a good student.
Nathaniel P. Wilkerson, PE
www.medeek.com
RE: Pilaster Design in Residential Stemwall
A confused student is a good student.
Nathaniel P. Wilkerson, PE
www.medeek.com
RE: Pilaster Design in Residential Stemwall
And that would likely be ok in my eyes.
RE: Pilaster Design in Residential Stemwall
A confused student is a good student.
Nathaniel P. Wilkerson, PE
www.medeek.com
RE: Pilaster Design in Residential Stemwall
But that's just a "feel" comment and they're likely ok as you've shown.
RE: Pilaster Design in Residential Stemwall
RE: Pilaster Design in Residential Stemwall
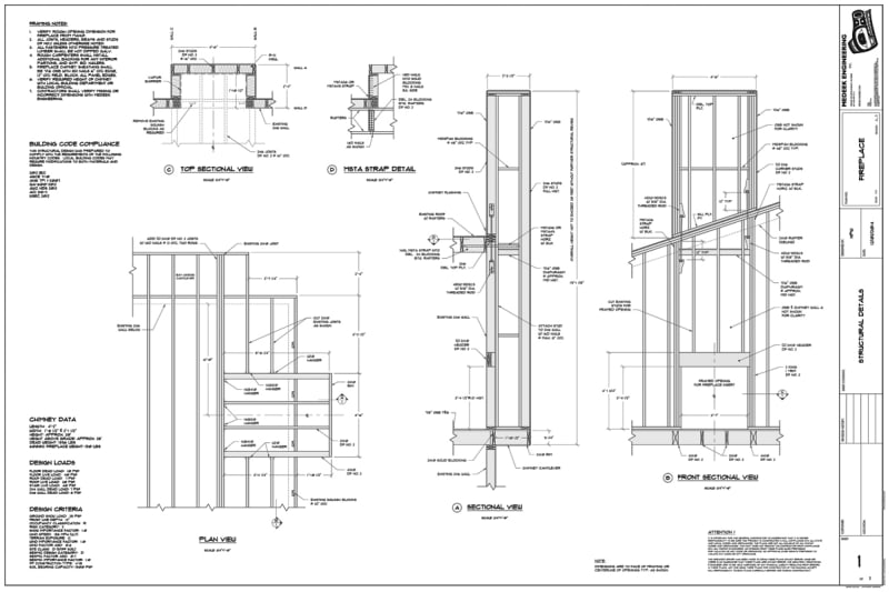
I've got a few drawings posted here that you can open up and look at the shading and the colors I am using:
http://design.medeek.com/cad/cadlibrary.html
The only downside is the extra time and effort to apply hatching to the framed areas and then to make sure they are behind all of the other line and text objects.
I also like to use a bit of color in my drawings since I think it helps differentiate things like structural notes, dimensions and physical objects.
A confused student is a good student.
Nathaniel P. Wilkerson, PE
www.medeek.com
RE: Pilaster Design in Residential Stemwall
Your drawings have a very clean and concise look. Nice use of color without making it an 'architectural rendering'. Well done.
RE: Pilaster Design in Residential Stemwall
For straps I've starting using a light gray shading with a blue outline, to help differentiate from wood or concrete objects. However, I'm not sure if I'm sold on the dark blue outline yet.
I'll admit I was influenced by different framing textbooks (Dewalt etc...) in my methods.
I'm not sure why I started using dark green as my dimension color but it somehow stuck and I am a creature of habit I guess.
For structural floor plans I use a light shade of gray for the walls, dark enough so that the walls pop out at you but light enough so the location of the holdown anchor bolts is clearly visible.
I've created a vast number of blocks so inserting windows, doors, posts etc... is fairly simple.
For structural notes and tables I like to use a dark blue to set them apart from my dimensions. I borrowed that idea from one of my mentors.
For shearwalls I use a deep red with a dashed heavy line weight.
I use the flux architect font by Clayton Cowan, mostly because it was free at the time I was looking for a suitable font, however it is missing a few important characters like the degree symbol but AutoCAD deals with this just fine.
The drawings really pop when you print them out full size at 24 x 36 (Arch D):
http://design.medeek.com/images/misc/WARD_RESIDENC...
A confused student is a good student.
Nathaniel P. Wilkerson, PE
www.medeek.com
RE: Pilaster Design in Residential Stemwall
Meant to post as an image.
A confused student is a good student.
Nathaniel P. Wilkerson, PE
www.medeek.com
RE: Pilaster Design in Residential Stemwall
My philosophy on drafting is that with only four key variables some amazing drawings can be created. Those four elements are:
1.) Lineweight
2.) Line Type
3.) Color/Grayscale
4.) Hatch Type
A confused student is a good student.
Nathaniel P. Wilkerson, PE
www.medeek.com
RE: Pilaster Design in Residential Stemwall
Your stuff looks awesome but I wonder what it looks like once the contractor has printed it in black and white and then made a bunch of copies on the xerox.
RE: Pilaster Design in Residential Stemwall
The use of dark colors for text also is important so that the contrast is maintained once they go to grayscale.
A confused student is a good student.
Nathaniel P. Wilkerson, PE
www.medeek.com
RE: Pilaster Design in Residential Stemwall
Nor have I added color, but with PDF files and inexpensive 11x17 color printers even the small residential contractor has cheap access to color printing.
11x17 printing or the use of an iPad are my personal choices on site.
RE: Pilaster Design in Residential Stemwall
"It is imperative Cunth doesn't get his hands on those codes."
RE: Pilaster Design in Residential Stemwall
Do you have a copy of your Pilaster spreadsheet that you would be willing to share? I've really enjoyed your posts and the responding threads. I am getting into the residential market; just trying to figure out how to make money doing it.
Thanks,
PBW2
RE: Pilaster Design in Residential Stemwall
I'm not going to say it is a polished product since I've only used it once and it has not undergone multiple revs like some of my other spreadsheets, this is my first draft.
You can download a copy of it here:
http://design.medeek.com/resources/column/
There are more complete spreadsheet/calculators out there that do deal with axial + moment loading if that does become a design issue.
With regards to making money at residential I'm feeling the pain. I've recently updated my pricing to $0.40 per sqft for residential structural work, lets see where that gets me...
A confused student is a good student.
Nathaniel P. Wilkerson, PE
www.medeek.com