Exporting PDF with line weight
Exporting PDF with line weight
(OP)
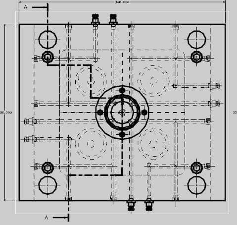
Why is it that when export the draft to PDF instead of showing the lines' widths like this
[img http://i.imgur.com/2lMTSO8.jpg]
It shows no line width?
[img http://i.imgur.com/45TiSBZ.jpg]
And how can i change that?
Thanks in advance
An1MuS
[img http://i.imgur.com/2lMTSO8.jpg]
It shows no line width?
[img http://i.imgur.com/45TiSBZ.jpg]
And how can i change that?
Thanks in advance
An1MuS





RE: Exporting PDF with line weight
When Exporting a PDF file, check the 'Width' option, in the 'Print Properties' section of the dialog, is set to 'Standard Widths'.
John R. Baker, P.E.
Product 'Evangelist'
Product Engineering Software
Siemens PLM Software Inc.
Digital Factory
Cypress, CA
Siemens PLM:
UG/NX Museum:
To an Engineer, the glass is twice as big as it needs to be.
RE: Exporting PDF with line weight
As it prints
Yes John it's set to Standard Widths